EXKLUSIVE KLEINE WOHNANLAGE IN GÖGGINGEN
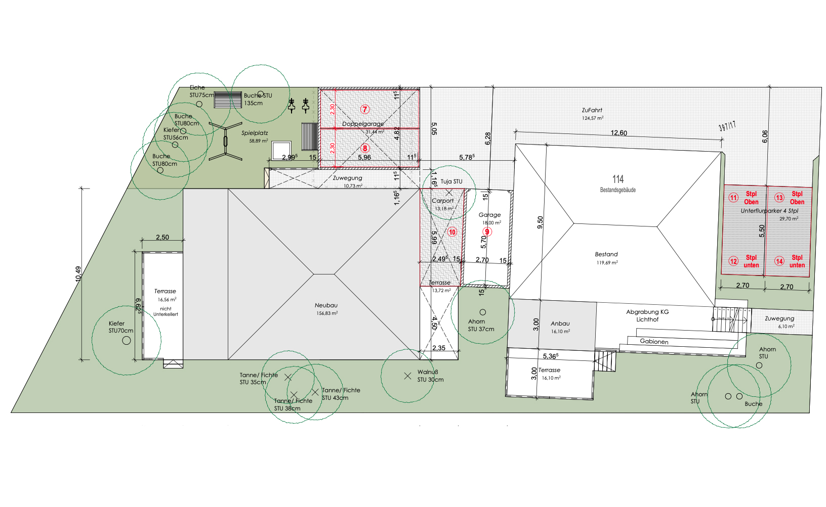
Das Projekt New-Classic besteht aus 4 Wohneinheiten im kernsanierten Bestandsgebäude und 2 Neubau-Doppelhaushälften mit 3 Garagen, 1 Carport und 4 Unterflur-Parkern. Geplante Fertigstellung der Anlage ist Q1-2026.
In seiner Anmutung lässt sich das Projekt New Classic ohne Übertreibung als architektonische Charme-Offensive in Bestlage bezeichnen, die über alle kurzlebigen Bau-Trends erhaben ist. Wer heute so detailverliebt plant, liebt sein Metier zweifelsohne. Schon die äußere elegante Erscheinung des weißen Gebäudekorpus mit dem herrschaftlichen grauen Walmdach steht für zeitlose und niveauvolle Wohnkultur, die sich an klassizistische Werte anlehnt. Mit unterschiedlichen Flächen von 66-170 Quadratmetern bieten die vier Wohnungen Raum für ganz individuelle Lebenskonzepte – und vereinen dabei doch harmonisch ein gemeinsames Ziel in sich: Es muss einfach schön sein !
Dazu zählt nicht nur der hohe ästhetische Anspruch, sondern auch die exquisite Ausstattung in den hohen, lichtdurchfluteten Interieurs sowie zeitgemäße, bautechnische Top-Standards wie zum Beispiel Wohnraumbelüftung und Fußbodenheizung.
NEW CLASSIC HIGHLIGHTS
- Energieeffizienshaus KFW 55 EE
- Dreischeiben-Isolierverglasung
- Wohnraumlüftung
- Fußbodenheizung
- Parkettböden
- elektrische Jalousien in den Wohnräumen
- Walk-in-Dusche
- Bäder mit deutschen Markensanitärobjekten
- hohe Innentüren (ca. 2,10 m)
- alle Terrassen mit Bangkirai
- Sprechanlage mit Videoauge und Farbmonitor
- Granit in den Teppenhäusern
Grundrisse & informationen
-
Grundrisse & informationen
-
Informationen und Kaufpreise
Nr. Wfl. Zi Stockwerk Terrasse/Balkon Sonstiges Kaufpreis Whg 1 ca. 71 qm 2 ZKB Souterrain 17,75 qm Terrasse – 495.000 EUR Whg 2 ca. 110 qm 4 ZKB EG 15,55 qm Terrasse Gäste-WC verkauft Whg 3 ca. 96 qm 4 ZKB 1. OG 15,89 qm Balkon Gäste-WC 685.800 EUR Whg 4 ca. 86 qm 3 ZKB DG 6,28 qm Balkon WC separat verkauft DHH 1 ca. 135 qm +
156 qm Grund4 ZKB EG + 1. OG 10,31 qm Terrasse +
9,61 qm Balkon– 995.500 EUR* DHH 2 ca. 1370 qm +
246 qm Grund5 ZKB EG + 1. OG 15,32 qm Terrasse +
27,11 qm Balkon– 1.269.600 EUR* Jede Wohnung (ausgenommen Whg 1) verfügt über einen Kellerraum.
Zu jeder Wohnung gehört ein Unterflurparker. Die Kaufpreise für einen Unterflurparker liegen bei 20.000 EUR pro Stellplatz.
Zu Doppelhaus 1 gehört eine Garage + Carport - Kaufpreis: 45.000 EUR
Zu Haus 2 gehört eine Doppelgarage - Kaufpreis: 50.000 EUR
So Wohnen Sie in Göggingen
Für stilvolles Wohnen verfügbare Bestlagen lassen sich in der Wachstumsregion Augsburg inzwischen an einer Hand abzählen. Der westliche Stadtteil Göggingen zählt mit seinen modernen Annehmlichkeiten und historischen Baujuwel-Beispielen aus der Gründerzeit zu den begehrtesten Vierteln der Schwabenmetropole. Weltweit bekannt sind sowohl die Hessing-Kliniken aks auch das als Jugendstil-Kleinod angesehene romatische Parktheater. Schulen, Sportanlagen und gehobener Einzelhandel bieten urbane Lebensqualität direkt vor der Haustüre.
Und das Naherholungsgebiet Wertach sorgt – ebenfalls in nächster Nähe – für grünes Freizeitvergnügen. Optimale Anbindung an beliebte Nah- und Fernziele garantieren die Straßenbahnlinie zum Augsburger Königsplatz, eine Vielzahl von Busverbindungen in weitree Stadtteile und Umlandgemeinden sowie die Stadttangente B17 mit Anbindung zur Autobahn A8 nach Müchnen und Stuttgart. Inmitten dieser priviligierten Lage ist die Gögginger Adresse Gögginger Straße 114 nochmals als gesondertes ”Filetstück” zu betrachten.
Unverbindlich Termin vereinbaren
Sie interessieren sich für das Bauprojekt „New Classic“ in Göggingen oder möchten einen Termin vereinbaren? Kontaktieren Sie uns für weitere Informationen Lorem ipsum dolor sit amet, consetetur sadipscing elitr…